Подбор дома по параметрам

«РД 123»

Площадь дома: 136 м2
1 900 000 руб.

Дом, спроектированный для многоуровневого ландшафта, дает возможности сохранить красоту окружающей среды и создать романтическое настроение. Высокая крытая терраса, уютный балкон под крышей не только расширяет жилое пространство дома, но и позволяет больше времени проводить на воздухе.

Материал стен – клееный брус с сечением 190х134


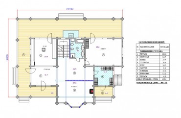
«РД 102»

Площадь дома: 240 м2
3 600 000 руб.

Каждый архитектурный элемент этого дома не только функциональная необходимость, но еще и элемент стилевого, декоративного решения. Благодаря членению фасадов и разноуровневой кровле, дом имеет собственный художественный образ. Кровля, спускающаяся к уровню первого этажа, образует с двух стороны укрытие для террасы и крыльца. Интересно, что в часть кровли над террасой интегрировано стекло, пропускающее дневной свет. Большую площадь остекления имеет и главный фасад, за которым располагается двухсветная гостиная. Второй этаж имеет мансардную конструкцию, так чтобы обеспечить разнообразные варианты размещения гостей.

Материал стен – клееный брус с сечением 190х134


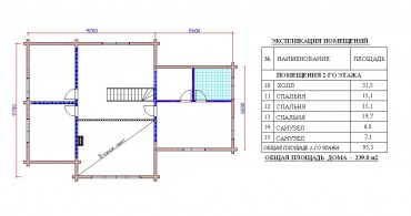
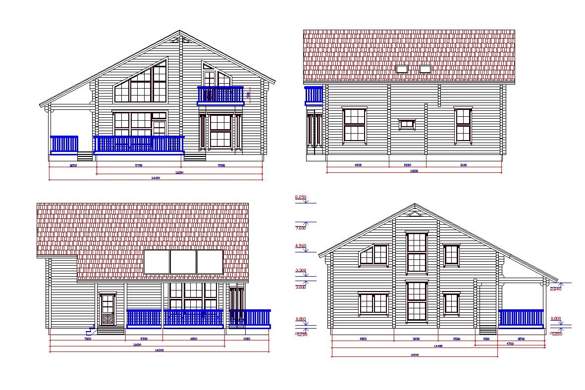
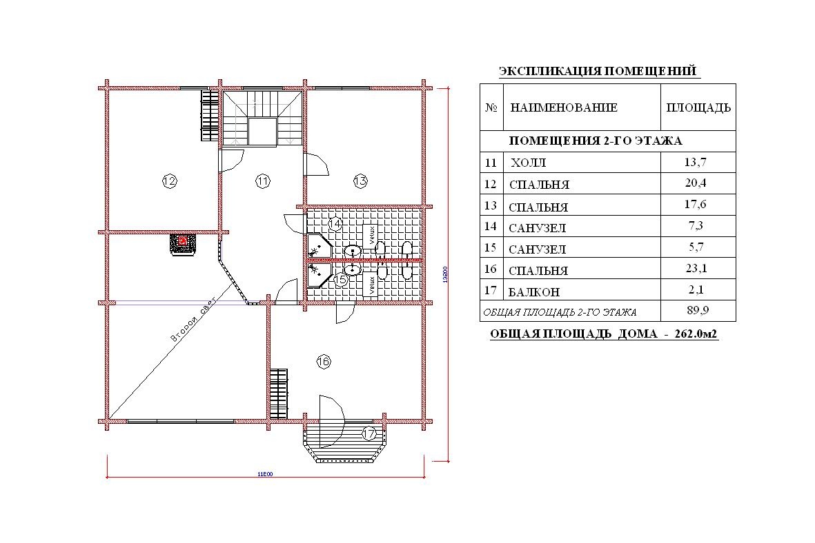
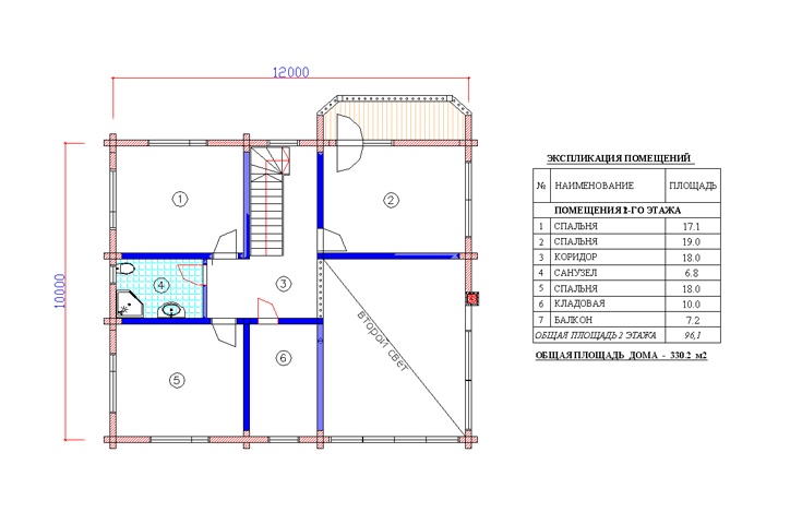
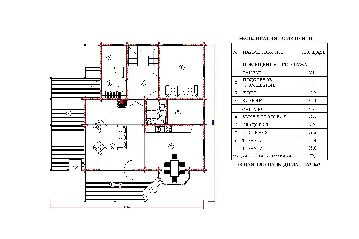
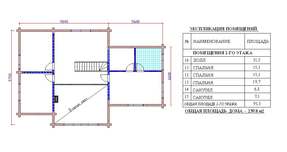
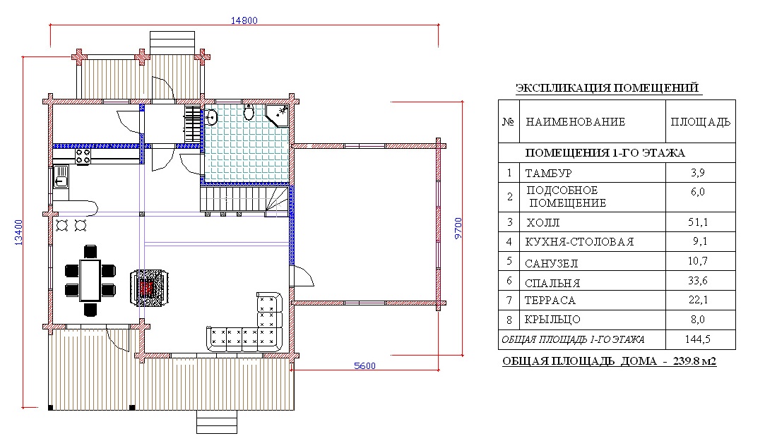
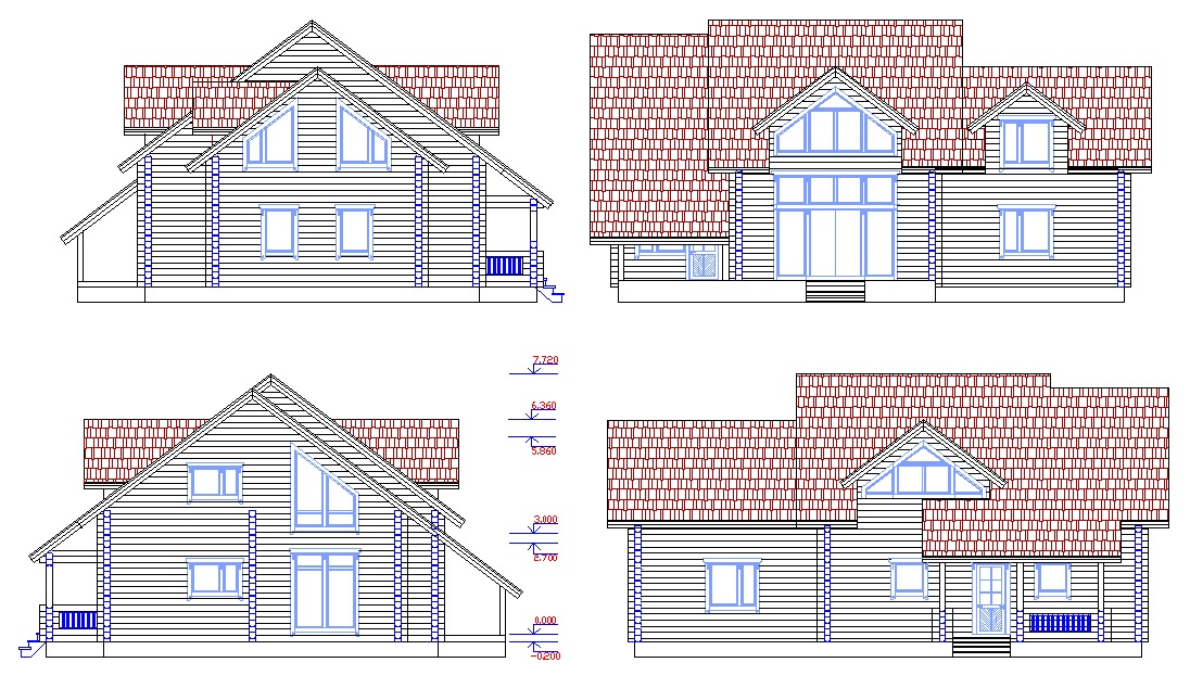
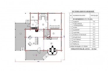
«РД 101»

Площадь дома: 262 м2
4 000 000 руб.

Жить в современном доме, жить активной и яркой жизнью – эта мечта сбывается легко и просто! Новый европейский стиль, присущий этому проекту, характеризует именно так своих хозяев: они молодые и яркие, амбициозные, ценят традиции и уклад большой семьи. В этом доме учтены интересы всех членов семьи, для разнообразного отдыха. Закрытая часть террасы переходит в мощеный пандус около дома, обеспечивая тем самым простор для вокруг дома. Эркеры нижних этажей по обеим сторонам дома завершены небольшими балкончиками – и это придает стилю дома романтичности и уюта. Интересным и рациональным решением для экстерьера и интерьера является вертикальное остекление фасада вдоль внутренней лестницы. А из двусветной гостиной, спроектированной в угловой части дома открывается чудесный вид на окружающий ландшафт. Данный проект дома является лидером продаж на нашем заводе. В данный проект можно внести свои изменения и сделать дом по своему, по красоте и удобству.

Материал стен – клееный брус с сечением 190х134


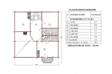
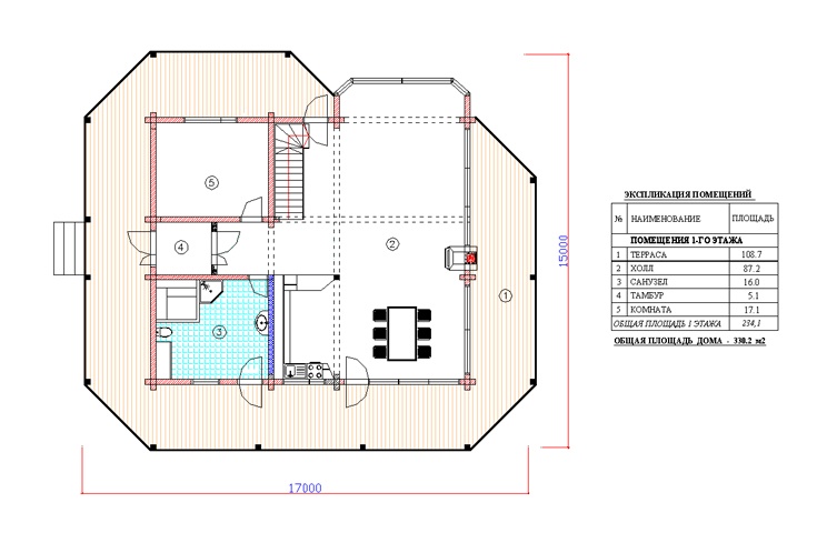
«РД 333»

Площадь дома: 330 м2
2 700 000 руб.

Необычная круговая терраса, опоясывающая всю постройку – является главной архитектурной особенностью этого проекта. Вторым достоинством загородного дома стала двухсветная гостиная, просторная и наполненная светом и воздухом. В столовой части первого этажа запроектирован камин. На втором этаже один санузел и три жилых помещения, в которых вы можете устроить спальню для гостей, детскую комнату и гардеробную. Мансардная часть дома со встроенными в крышу окнами может быть использовано как хозяйственное или жилое пространство.

Материал стен – клееный брус с сечением 190х134


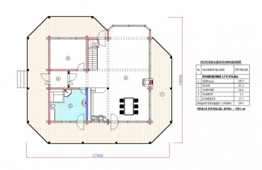
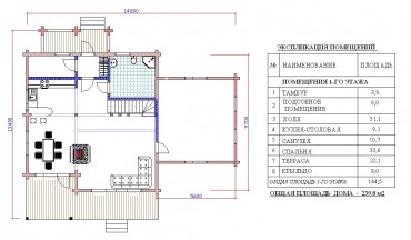
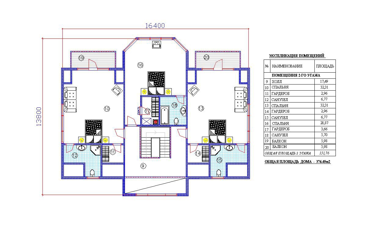
«РД 61»

Площадь дома: 376 м2
5 300 000 руб.

Традиционная архитектура большого загородного дома – это то, что ценится всегда и будет существовать вне времени и моды. Визуально разделенный на три части фасад определяет монументальность и характер дома. Средняя часть фасада застекленная в двух этажах дарит дневной свет интерьеру и в тоже время является декоративным решением внешней и внутренней архитектуры коттеджа. Открытая терраса частично опоясывает дом и может использоваться в теплое время года для отдыха. Двухэтажный эркер в три окна – особое украшение этого дома, придающего постройке особый колорит и уют. Внутреннее расположение комнат и подсобных помещений продумано так, что вы сможете менять их назначение и стилистику. В этом доме все зависит от хозяина!

Материал стен – оцилиндрованное бревно размер 230


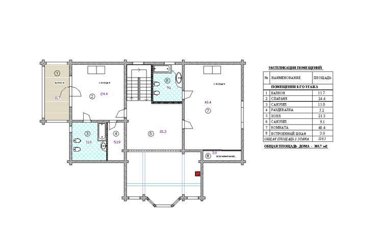
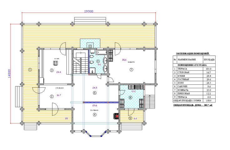
«РД 111»

Площадь дома: 386 м2
6 000 000 руб.

Большой роскошный коттедж предназначен для постоянного проживания семьи загородом. Его архитектурная стилистика напоминает по своему фасадному и планировочному решению – альпийские шале, одни из самых популярных и романтичных типов жилья. Большая терраса опоясывает дом по периметру. Два жилых этажа спланированы так, чтобы обеспечить максимальный комфорт для хозяев. В гостевой зоне предусмотрена установка камина, есть большая и удобная гардеробная и несколько помещений, который могут быть использованы как для частных нужд хозяев, так и для приема гостей. На втором этаже могут расположиться спальни, так как здесь есть два автономных санузла с ванными. Архитекторами предусмотрено, все чтобы жизнь на природе была счастливой!

Материал стен – клееный брус с сечением 190х134


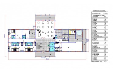
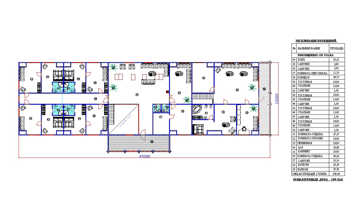
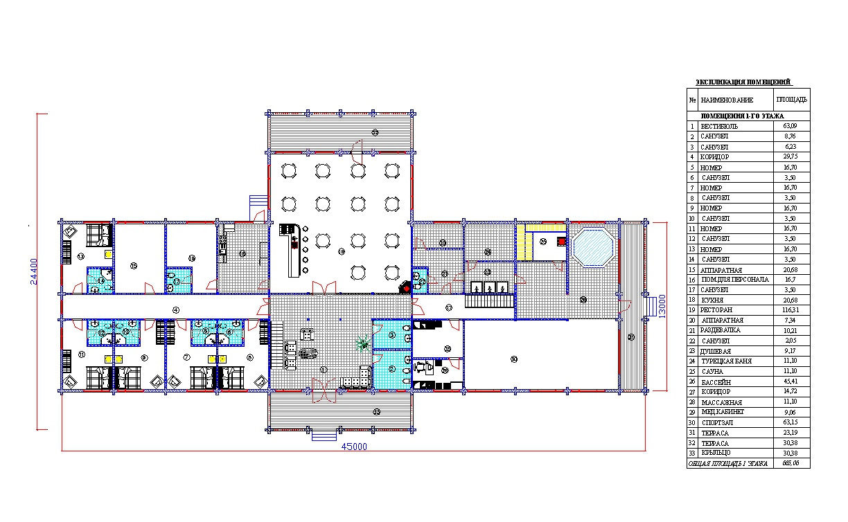
«РД 60»

Площадь дома: 1195 м2
11 300 000 руб.

Проект гостиничного комплекса. Нашим заводом было придумано, внедрено и изготовлено для заказчика, который хотел построить гостиничный комплекс в красивейшем месте в сосновом лесу. Данный проект был акцентирован в том, чтобы все материалы были изготовлены из экологически чистого материала. Проект получился очень красивым и выгодным для заказчика. Построенный нами гостиничный комплекс всегда радует обывателей этих мест, красивыми видами и простотой архитектуры. 

Материал стен – оцилиндрованное бревно размер 230